Používame cookies

Súbory cookie a ďalšie technológie sledovania používame na zlepšenie vášho zážitku z prehliadania našich webových stránok, na to, aby sme vám zobrazovali prispôsobený obsah a cielené reklamy, na analýzu návštevnosti našich webových stránok a na pochopenie toho, odkiaľ naši návštevníci prichádzajú. Viac info

 

Novostavba rodinného domu v obci Kobyly

Obec: Kobyly
Okres: Bardejov
Kraj: Prešovský kraj
Druh: Domy
Typ: Predaj
Typ domu: Rodinný dom
Iné:
Rezervované

Popis nehnuteľnosti

Ponúkame Vám na predaj 8 ( osem) totožných rodinných domov v katastri obce Kobyly. Domy budú postavené na pozemkoch o výmere od 590 m2  do 680 m2.

Rodinné domy budú napojené na verejnú sieť vedenia ELI. Splaškové vody budú odvedené do žumpy a zrážkové vody zo strechy budú zvedené na terén, pripadne do retenčnej nádoby s prepadom na voľný terén, kde sa budú prirodzene vsakovať. Terén je mierne svahovitý a slnečný.

Rodinný dom je určený na bývanie pre  rodiny. Je navrhovaný ako samostatne stojaci, jednopodlažný, bez podpivničenia. V čase kolaudácie bude objekt napojený na verejné technické vybavenie územia:

- napojením na vodovodnou prípojku

- napojením na splaškovú kanalizáciu – žumpa

- napojením na prípojkou elektrickej energie.

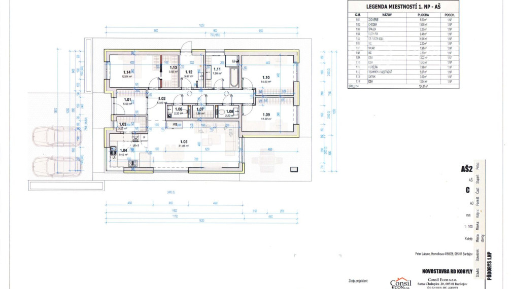
Rodinný dom pozostáva z týchto miestností:

ZÁDVERIE, CHODBA, ŠPAJZA, KUCHYŇA,  OBÝVACIA IZBA,  SKLAD, 2x WC, IZBA, IZBA, KÚPEĽŇA, TECHNICKÁ MIESTNOSŤ, ŠATNÍK, IZBA.

Dispozíciu - vnútorné riešenie je možné toho času meniť podľa prianí kupujúcich.

Obvodové nosné murivo je z pórobetónových tvárnic  Termalika o hrúbke 300 mm. Obvodové murivo je zateplené tepelnoizolačným kontaktným zatepľovacím systémom, tepelnou izoláciou z polystyrénu, vonkajšou štandardnou omietkou (sieťka, lepidlo a silikónová omietka) .

Stĺpy sú navrhované s DT tvárnic. Okná a vchodové dvere sú navrhnuté plastové, s izolačným trojsklom  s plastovým distančným rámikom. Zasklenie vakuovým trojsklom, číre. Súčasťou dodávky okien a zasklenných stien bude kotvenie a vonkajší parapet z hliníkového plechu, vo farebnom odtieni podľa okien a z interiéru plastový.

Navrhované sú vonkajšie minerálne jemné omietky na zatepľovací systém z tepelnej izolácie, z polystyrénu vo forme dosiek hrúbky 150 mm. Vnútorné sadrové omietky. Kúpeľňa a WC príprava na obklad.

Strop fukana izolácia, parozábrana fólia a sádrokartón.

Vykurovanie  domu je riešené tepelným čerpadlom a krbom (v stave holodomu -príprava na krb). Ohrev teplej vody bude z tepelného čerpadla s objemom 150 litrov, plus príprava na krb.

Rodinné domy sa predávajú v stave holodom. Výstavba domou sa začala. 

Kúpna cena 207.000 €.

Vlastnosti

Status:
rezervované
Vlastníctvo:
osobné
Plocha pozemku:
673 m2
Typ zeme:
rovina
Úžitková plocha:
125 m2
Zastavaná plocha:
150 m2
Stav:
novostavba
Počet izieb:
4
Energetický certifikát:
A
Typ budovy:
tehla
Typ výbavy:
holopriestor
Terasa:
áno
Rok výstavby:
2025
Rok kolaudácie:
2025
Počet poschodí od prízemia vyššie:
1
Celková plocha:
150 m2
Inžinierske siete:
áno
Voda:
áno
Elektrika:
áno
Kanalizácia:
áno
Voda - na pozemku - vodný zdroj:
áno
Elektrika - na pozemku - 230 V:
áno
Kanalizácia - na pozemku - čistička odpadových vôd:
áno
Status:
rezervované
Vlastníctvo:
osobné
Plocha pozemku:
673 m2
Typ zeme:
rovina
Úžitková plocha:
125 m2
Zastavaná plocha:
150 m2
Stav:
novostavba
Počet izieb:
4
Energetický certifikát:
A
Typ budovy:
tehla
Typ výbavy:
holopriestor
Terasa:
áno
Rok výstavby:
2025
Rok kolaudácie:
2025
Počet poschodí od prízemia vyššie:
1
Celková plocha:
150 m2
Inžinierske siete:
áno
Voda:
áno
Elektrika:
áno
Kanalizácia:
áno
Voda - na pozemku - vodný zdroj:
áno
Elektrika - na pozemku - 230 V:
áno
Kanalizácia - na pozemku - čistička odpadových vôd:
áno

Informatívna úverová kalkulačka

Pozrieť na mape

Maklér

Ing. Ján Pecuch

Ing. Ján Pecuch

maklér

  • Slovensky
  • English
  • Pусский

Radi Vám poradíme

Podobné nehnuteľnosti