Používame cookies

Súbory cookie a ďalšie technológie sledovania používame na zlepšenie vášho zážitku z prehliadania našich webových stránok, na to, aby sme vám zobrazovali prispôsobený obsah a cielené reklamy, na analýzu návštevnosti našich webových stránok a na pochopenie toho, odkiaľ naši návštevníci prichádzajú. Viac info

 

Rodinný dom v blízkom centre mesta Bardejov

Ulica: Puškinova
Obec: Bardejov
Okres: Bardejov
Kraj: Prešovský kraj
Druh: Domy
Typ: Predaj
Typ domu: Rodinný dom
Iné:
Rezervované

Popis nehnuteľnosti

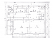
Ponúkame na predaj, priestranný dvojpodlažný Rodinný dom v Bardejove, v lukratívnej časti a to medzi centrom mesta a areálom nemocnice s poliklinikou.

Rodinný dom je dvojpodlažný, podpivničený.

V suteréne domu sa nachádzajú tieto miestnosti: kotolňa, garáž, komora, práčovňa, sklad na zeleninu a ovocie, uložný priestor ( vhodný na podnikanie ).

Na prízemí domu sa nachádzajú tieto miestnosti: predsieň, vstupná hala, kuchyňa, komora, kúpeľňa, WC a dve izby.

Na poschodí domu sa nachádza: hala, dve izby a pôjd.

Rodinný dom je napojený na všetky IS ( voda - mestský vodovod, elektrina, vykurovanie domu je plynové, odpad je zvedený do mestskej kanalizácie ).

Rodinný dom je v pôvodnom - udržiavanom stave, postavený na pozemku 735 m2 ( vrátane zastavanej plochy ).

Vzhľadom na lukratívnu polohu Rodinného domu, je možné využívať ho aj na polyfunkciu ( bývanie + podnikanie ).

Kúpna cena dohodou

 

 

 

Vlastnosti

Status:
rezervované
Vlastníctvo:
osobné
Plocha pozemku:
735 m2
Typ zeme:
rovina
Teritórium:
Intravilán
Úžitková plocha:
250 m2
Zastavaná plocha:
100 m2
Podlahová plocha:
735 m2
Stav:
pôvodný stav
Počet izieb:
4
Typ budovy:
tehla
Garáž:
áno
Pivnica:
áno
Špajza:
áno
Sklad:
áno
Celková plocha:
735 m2
Počet garáží:
1
Inžinierske siete:
áno
Voda:
áno
Elektrika:
áno
Plyn:
áno
Kanalizácia:
áno
Voda - na pozemku:
áno
Elektrika - na pozemku:
áno
Plyn - na pozemku:
áno
Kanalizácia - na pozemku - kanalizácia:
áno
Vykurovanie - lokálne:
áno
Status:
rezervované
Vlastníctvo:
osobné
Plocha pozemku:
735 m2
Typ zeme:
rovina
Teritórium:
Intravilán
Úžitková plocha:
250 m2
Zastavaná plocha:
100 m2
Podlahová plocha:
735 m2
Stav:
pôvodný stav
Počet izieb:
4
Typ budovy:
tehla
Garáž:
áno
Pivnica:
áno
Špajza:
áno
Sklad:
áno
Celková plocha:
735 m2
Počet garáží:
1
Inžinierske siete:
áno
Voda:
áno
Elektrika:
áno
Plyn:
áno
Kanalizácia:
áno
Voda - na pozemku:
áno
Elektrika - na pozemku:
áno
Plyn - na pozemku:
áno
Kanalizácia - na pozemku - kanalizácia:
áno
Vykurovanie - lokálne:
áno

Pozrieť na mape

Maklér

Ing. Ján Pecuch

Ing. Ján Pecuch

maklér

  • Slovensky
  • English
  • Pусский

Radi Vám poradíme

Podobné nehnuteľnosti